
L'agence Lorient Larmor-Plage
Agence
Contacter l'agence

Vendu
Immeuble 163 m²
Lorient (56100)
414 800 €
Référence 1699
A propos de ce bien
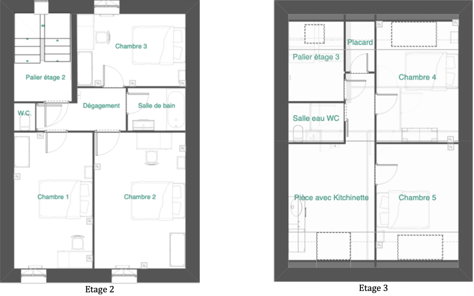
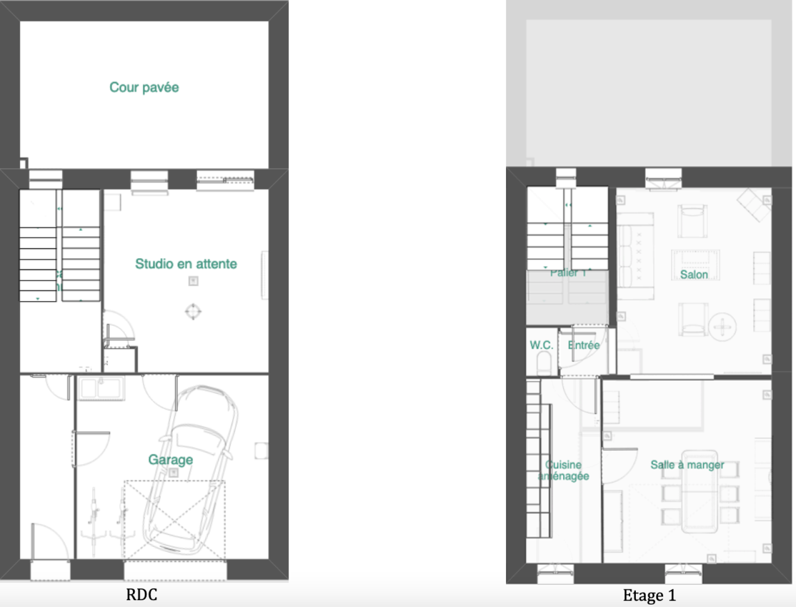
Caractéristiques de ce bien
- Surface 163 m²
- carrez 163 m²
- terrain 94 m²
- 5 chambre(s)
- 1 salle(s) de bain
- 1 salle(s) d'eau
- construit en 1889
- cuisine séparée (semi-équipée)
- Chauffage collectif : radiateur (gaz)
- 1 garage(s)
- exposition Est-Ouest
- 2 côté(s) mitoyen(s)
- 4 niveau(x)
- terrasse
Diagnostics énergétiques
Consommation énergétique
A
B
C
D
E
F
G
Emission de gaz à effet de serre
A
B
C
D
E
F
G
DPE ANCIENNE VERSION
Diagnostics énergétiques
DPE ANCIENNE VERSION
Informations financières
Prix de vente honoraires TTC inclus
414 800 €
Prix de vente honoraires TTC exclus
400 000 €
Honoraires TTC à la charge acquéreur
3,7 %
Taxe foncière annuelle
1 484 €
Autour du bien
-
Commerces et santé
-
Loisirs
-
Ecoles
-
Transports
-
Pratique